Antecedentes

En 1985, el Consejo de Estado desarrollaba sus funciones como supremo cuerpo consultivo y máximo tribunal de lo contencioso-administrativo en el Palacio de Justicia, ubicado en la calle 12 entre carreras 7 y 8 en la ciudad de Bogotá. En ese entonces estaba conformado por veinte (20) consejeros divididos en la sala de lo contencioso-administrativo y la sala de consulta y servicio civil y seis fiscales:

Sala de lo contencioso-administrativo

    Sección Primera
  • Samuel Buitrago Hurtado
  • Simón Rodríguez Rodríguez
  • Miguel Betancourt Rey
  • Mario Enrique Pérez Velasco
  • Secretario: Victor M. Villaquirán M.

  • Sección Segunda
  • Aydée Anzola Linares
    (primera mujer magistrada de alta corte en Colombia)
  • Reynaldo Arciniega Baedecker
  • Joaquín Vanín Tello
  • Gaspar Caballero Sierra
  • Secretario: Miguel Antonio Perilla P.

  • Sección Tercera
  • Jorge Valencia Arango
  • Carlos Betancur Jaramillo
    (presidente)
  • Julio César Uribe Acosta
  • Antonio José de Irisarri Restrepo
  • Secretario: Félix Arturo Mora Villate


  • Sección Cuarta
  • Jaime Abella Zárate
  • Carmelo Martínez Conn
    (vicepresidente)
  • Enrique Low Murtra
  • Gustavo Humberto Rodríguez
  • Secretario: Jorge A. Torrado Torrado

  • Sala de Consulta y Servicio Civil
  • Jaime Betancur Cuartas
  • Jaime Paredes Tamayo
  • Eduardo Suescún Monroy
  • Humberto Mora Osejo
  • Secretaria: Elizabeth Castro Reyes

  • Fiscales
  • Álvaro León Cajiao
  • Edné Cohen Daza
  • Carlos Octavio Rodríguez
  • Euclides Londoño Cardona
  • Clara Forero de Castro
  • Dolly Pedraza de Arenas

  • Secretario General
  • Darío Quiñones Pinilla
  • Relatoras
  • Nubia González Cerón
  • María Elena Giraldo Gómez


  • Créditos: Centro de Memoria del Holocausto del Palacio de Justicia y del Derecho a la Vida.


    El antiguo edificio del Palacio de Justicia contaba con dos sótanos para estacionamiento oficial de vehículos con ingreso por la carrera octava, espacios a los que llegaban los dos ascensores del costado norte.

    En el primer piso funcionaban las secretarías generales de la Corte Suprema y del Consejo de Estado, las secretarías de las salas y las secciones, la biblioteca y las relatorías.

    Hacia el fondo, al occidente, quedaba ubicada la cafetería del palacio y adyacente a ellos, el auditorio y el salón de actos.

    En el segundo piso, estaban las oficinas de los magistrados del Consejo de Estado y en los pisos tercero y cuarto, los despachos de los restantes consejeros y de los magistrados de la Corte Suprema de Justicia.



    Plano Interactivo - Palacio de Justicia-1

    Plano Palacio de Justicia

    Plano Interactivo - Palacio de Justicia-1b

    Plano Palacio de Justicia

    Plano Interactivo - Palacio de Justicia -2

    Plano Palacio de Justicia

    Plano Interactivo - Palacio de Justicia - 3

    Plano Palacio de Justicia

    Plano Interactivo - Palacio de Justicia-4

    Plano Palacio de Justicia
    Créditos: Centro de Memoria del Holocausto del Palacio de Justicia y del Derecho a la Vida.

    Textos del archivo original. Diagramación: Consejo de Estado



    Desde su creación, la naturaleza del consejo de Estado ha sido la de fungir como control a los actos de la administración pública. Incluso, antes de 1991 y de que en Colombia se hablara con mayor contundencia de los derechos fundamentales, el Consejo de Estado reconocía la protección de los derechos de todas las personas, en especial, ante la acción u omisión de agentes estatales.

    El doctor Augusto Hernández Becerra, profesor Emérito de la Universidad Externado de Colombia y exconsejero de Estado, comenta, sobre los juristas que hicieron parte de nuestra corporación: «Los consejeros de Estado habían recibido en las aulas universitarias, desde el siglo XIX, una formación centrada en el derecho civil y el derecho canónico. Esta circunstancia no les impidió ser los primeros jueces constitucionales en las causas individuales».

    Esta afirmación no fue solamente cierta para el siglo XIX, en la década de los 80, el Consejo de Estado, fiel a su labor judicial, profirió varias condenas al Estado Colombiano representado por el Ejército Nacional por el exceso en el ejercicio de sus funciones se convirtió en «una barrera contra los errores y abusos del Estado, decretando nulidades e indemnizaciones».

    En efecto, 4 meses antes, del Holocausto, el 27 de junio de 1985, el Consejo de Estado declaró responsable al Ministerio de Defensa, por los perjuicios causados a Iván López Botero, Olga López de Roldán y Olga Helena Roldán «a causa de las torturas a las que fueron sometidas durante su detención por cerca de dos años en las instalaciones de la Brigada de Institutos Militares y otras dependencias oficiales».

    «Desde que entraron supe que eran ellos. Lo habían anunciado varias semanas antes porque los rumores eran varios y a veces las consignas negativas se filtran»

    - Julio César Uribe Acosta, consejero de Estado en 1985.


    Crónica de una toma anunciada


    En 1985, el Palacio de Justicia era un espacio marcado por amenazas y tensiones. Los magistrados de la Corte Suprema enfrentaban presiones de los llamados extraditables, mientras estudiaban la constitucionalidad del tratado que autorizaba la extradición de colombianos a Estados Unidos. El magistrado Manuel Gaona Cruz, ponente del fallo, recibió sufragios e intimidaciones que comprometieron a su familia, y los integrantes de la Sala Penal, encargados de dar conceptos en los trámites de extradición, tampoco escaparon a estas presiones.

    El Consejo de Estado fue objeto de hostigamientos tras fallos que responsabilizaron al Estado por violaciones a los derechos humanos. En junio de ese año, declaró a la Nación, a través del Ministerio de Defensa, responsable por las torturas y daños sufridos por Iván López Botero, Olga López de Roldán y su hija menor durante una detención prolongada en instalaciones militares. El fallo ordenó indemnizaciones y abrió la puerta a investigaciones penales, lo que generó malestar en sectores castrenses. Varios consejeros recibieron amenazas y atentados en las semanas previas a la toma.

    «Réquiem por el Consejo de Estado» corresponde al título del panfleto intimidatorio recibido por los magistrados del Consejo de Estado, con ocasión de ese fallo emitido el 27 de junio de 1985.

    requiem
    Créditos: Facsimilar “Réquiem por el Consejo de Estado”, Decreto Legislativo 1917 de 1986, Diario Oficial (Bogotá), 17 de junio de 1986.

    El 17 de octubre de 1985 la Policía Nacional informó a los presidentes de las altas cortes sobre un plan del M-19 para tomarse el Palacio de Justicia.

    Se propusieron medidas de seguridad como cámaras de vigilancia, vidrios blindados, barreras eléctricas y refuerzo de la guardia, pero por limitaciones presupuestales del Fondo Rotatorio de Administración de Justicia impidieron ejecutar la mayoría de estas medidas; solo se aumentó el pie de fuerza y hasta comienzos de noviembre de 1985, el Palacio de Justicia estuvo resguardado con un dispositivo especial integrado más de una veintena de policías. No obstante, el día en que se produjo la toma esa protección había sido retirada.

    El 6 de noviembre de 1985, los magistrados, magistrados auxiliares, empleados administrativos y de servicios del Consejo de Estado y de la Corte Suprema de Justicia, así como los abogados y visitantes frecuentes u ocasionales del Palacio de Justicia realizaban sus actividades habituales.

    En medio de la zozobra por las crecientes amenazas, el temor por el retiro de la protección policial y los rumores que alertaban sobre la inminencia de una toma al Palacio.

    Nadie podría imaginar que 28 horas después, el Palacio de Justicia sería arrasado como resultado de una de las acciones más demenciales que el país ha presenciado, resultado de la violenta incursión armada de la guerrilla y la desproporcionada respuesta del Estado.

    El uso de armamentos y explosivos de todo tipo, el inexplicable vacío de poder en el Gobierno y los incendios que destruyeron la edificación provocaron un saldo trágico de cerca de un centenar de personas que perdieron la vida entre civiles, miembros de la fuerza pública y guerrilleros, y al menos 11 cuyo paradero aún se desconoce.



6 DE NOVIEMBRE DE 1985

“El día miércoles 6 bajé con Gaspar Caballero que siempre me invitaba más o menos a las 10:00, 10:30 a tomar café a la cafetería, y me dijo: ¿Carlos, te diste cuenta que quitaron la guardia del palacio? y dije: Sí, ya nos pueden matar tranquilos”.

- Carlos Betancur Jaramillo, presidente del Consejo de Estado en 1985

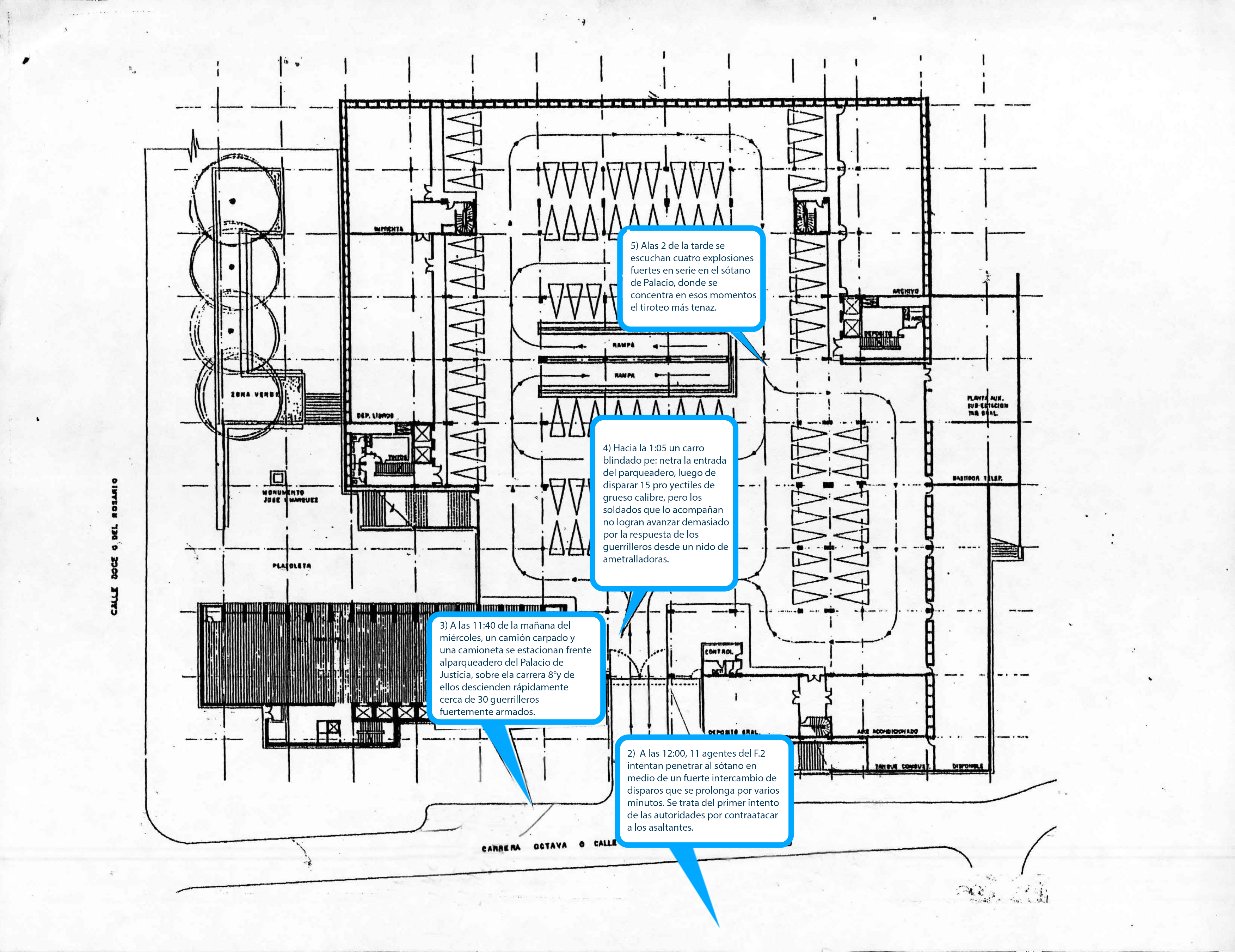
Ante la escasa vigilancia del Palacio de Justicia, el 6 de noviembre, entre las 10:30 y las 11:00 de la mañana un grupo de siete personas armadas, vestidas de civil, pertenecientes al M-19 logró ingresar a las instalaciones. Se dice que la actividad de inteligencia previa por parte de este grupo se desarrolló desde junio de 1985.

Dos de los guerrilleros del M-19 se ubicaron en la Secretaría del Consejo de Estado, dos en la Secretaría de la Sección Tercera, dos en la cafetería y una mujer en el cuarto piso.

Posteriormente, otro grupo de veintiocho guerrilleros entró en tres carros por el parqueadero del Palacio a sangre y fuego indiscriminado.

El primer grupo se había ubicado en las diferentes oficinas del Palacio y al escuchar los primeros disparos anunció la toma armada por parte del M-19.

A partir de la 1:00 p.m. del 6 de noviembre la fuerza pública asumió la acción ofensiva con ocho unidades blindadas y tres helicópteros. La sangrienta y prolongada batalla causó numerosas bajas en ambos bandos, dio lugar al primer incendio en el sótano y se caracterizó por el empleo de armas automáticas, bombas y explosivos.



Créditos: RTVC - Señal Memoria


Con el ingreso de los tanques la situación se recrudeció: dentro del Palacio de Justicia los tanques disparaban continuamente contra los pisos 3º y 4° que no estaban en poder del Ejército; los helicópteros sobrevolaron por el costado norte y había una “lluvia de balas” que penetraba en las oficinas; caían las cortinas y las lámparas, los vidrios se reventaban, se vivía una situación de terror. Se podía distinguir cuando los tanques iban a disparar, pues había un ruido característico que lo indicaba; se sentía que el cuarto piso iba a caer. Ese bombardeo era continuo. Desde el tercer piso, los rehenes enviaban papeles con mensajes diciendo que estaban allí para que el Ejército los rescatara, pero nadie les ponía atención.

El ingreso de los tanques por el sótano y por la puerta principal del Palacio de Justicia, las explosiones indiscriminadas y los disparos desde fuera y dentro del edificio, todo ello en un lapso muy corto desde el inicio de la violenta toma, determinaron que la situación se tornara en extremo grave y desesperada para quienes se encontraban dentro del palacio. La guerrilla se concentró en dos puntos principales desde ese momento: uno en el cuarto piso, al mando de Otero, y otro en el tercero, con Almarales al frente.

Créditos: RTVC - Señal Memoria


Varios de los rehenes que se encontraban en el tercer piso evocan lo que han coincidido en llamar “la letanía” que el Magistrado Reyes Echandía repetía incesantemente: “¡No disparen, por favor, somos rehenes, soy el presidente de la Corte!”, y en la respuesta consistente en bombas y disparos provenientes de los tanques que estaban en el primer piso.

Luego de haberse comunicado en varias ocasiones con su hijo Yesid y con el presidente del Senado y de haber intentado infructuosamente hablar con el presidente de la República, el país escuchó a través de los medios de comunicación el angustioso y elocuente llamado del presidente de la Corte Suprema de Justicia, Alfonso Reyes Echandía: “¡Que cese el fuego!”.

Créditos: RTVC - Señal Memoria


El primer incendio que se produjo inició entre la 1:00 p.m. y las 2:00 p.m. en el sótano, después de la colocación por parte de guerrilleros del M-19 de cargas explosivas, del ingreso de los tanques y del fuerte enfrentamiento que se dio en esa zona, donde se encontraban estacionados numerosos vehículos, algunos de los cuales resultaron quemados; sin embargo, este incendio no se propagó.

El segundo incendio se originó, al parecer, en el auditorio adjunto a la biblioteca, en el primer piso, cuando ya la fuerza pública tenía el control de ese nivel de la edificación, hacia las 5:00 p.m. o las 6:00 p.m. El tercero, el de mayor capacidad de conflagración, se inició en el cuarto piso, según versiones de testigos, hacia las 6:00 p.m.

Al final no fue posible saber con certeza cómo murieron los rehenes y guerrilleros que se hallaban en el cuarto piso ni el número cierto de personas que allí se encontraban. Se desconoce quiénes fallecieron antes de que las llamas lo consumieran todo, porque de este grupo no sobrevivió ni una sola persona; lo cierto es que los cuerpos se encontraron, en su mayoría, desmembrados, mutilados al parecer por el efecto de las explosiones y casi todos calcinados. Según informes técnicos, por lo menos tres de los magistrados (Alfonso Reyes Echandía, Ricardo Medina Moyano y José Eduardo Gnecco Correa) mostraron en sus restos mortales proyectiles de armas que no usó la guerrilla.

Las llamas y el humo obligaron a los sobrevivientes a refugiarse en el baño ubicado entre los pisos segundo y tercero. Alrededor de 60 rehenes quedaron hacinados en un reducido espacio de 20 metros cuadrados, sometidos al ruido ensordecedor de los disparos de fusiles, granadas, bombas explosivas, disparos de tanques y rockets producidos desde el exterior, las incomodidades locativas propias de esa infamante situación, el calor, la oscuridad, el hambre, la sed, la sensación de impotencia absoluta, la intensidad del fuego cruzado en el que algunos perdieron la vida y otros fueron heridos, la preocupación por sus seres queridos, la asfixia y la inminencia de la muerte.

Durante todo el tiempo, espontáneamente o por insinuación de los guerrilleros, los rehenes gritaban que eran civiles y pedían al Ejército que no les disparara más. También gritaron a los militares diciéndoles que había heridos, que eran magistrados de la Corte, y la respuesta invariablemente fue una sarta de groserías y nuevos disparos.

En un rincón del baño había una bomba muy grande, fabricada artesanalmente, que parecía ser de inmenso poder. Los rehenes temían que el M-19 decidiera, frente a la gravedad de la situación, detonarla. La bomba, sin embargo, no fue detonada.

Alguien tenía un radio en el baño donde escucharon en la noche que estaban transmitiendo un partido de fútbol, por lo que los rehenes pensaron que su situación no le interesaba a nadie.

Créditos: RTVC - Señal Memoria


Hacia las 2:00 a.m. hubo un ensordecedor ruido producido por ametralladoras y rockets disparados desde un tanque contra el frente del Palacio de Justicia. Parecía que el edificio se iba a caer y después hubo silencio total durante algunas horas.

“El miedo tocó mi puerta, la fe salió a abrir y no había nadie”

- Julio César Uribe Acosta, consejero de Estado al presidente Belisario Betancour durante una llamada telefónica el 6 de noviembre de 1985.



7 DE NOVIEMBRE DE 1985



“Yo le suplicaba a él: suspenda esa operación rastrillo, porque van a matar gente inocente”.

- Reynaldo Arciniegas Baedecker, consejero de Estado

Las municiones de los guerrilleros ya eran muy escasas, y en la mañana del 7 de noviembre los tanques empezaron a bombardear nuevamente. Al amanecer, oyeron en el radio que a las 9:00 a.m. el presidente de la República, Belisario Betancur, se reuniría con los ministros y también que el Ejército ya tenía totalmente controlado el Palacio y sólo quedaba un reducto guerrillero, por lo que se iniciaría la Operación Rastrillo.

En el baño, además de un total aproximado de 60 rehenes, había inicialmente entre 10 y 12 guerrilleros, incluidas 3 mujeres.

Desde el momento en que el Ejército se dio cuenta que en el baño ubicado entre el segundo y el tercer piso había guerrilleros, afinaron la puntería y dispararon hasta el final. Se incrementó el envío de las granadas de fragmentación, particularmente. Como producto de la violenta e inesperada explosión en la pared oriental del baño, acompañada de ráfagas de disparos desde el exterior, se produjo una inmediata reacción de los guerrilleros que dispararon sus armas contra algunos rehenes que se encontraban en el baño.

En ese momento, los retenidos rogaron a Almarales que los dejara salir, a lo cual se negó inicialmente. Ante las súplicas de los cautivos y en especial las de sus propias compañeras del M-19, accedió a que primero salieran las mujeres. Fue cuando las guerrilleras Irma Franco Pineda y Clara Helena Enciso despojaron de sus prendas de vestir a empleadas judiciales que habían fallecido, se camuflaron entre las rehenes y salieron con ellas. Después Almarales dijo: “Los que quedamos nos morimos todos”, pero después replicó: “Salgan los heridos”. Finalmente, después de ellos, salieron los demás cautivos. Siete de los rehenes que se encontraban en el baño perdieron la vida dentro del Palacio de Justicia.

Créditos: RTVC - Señal Memoria


Cuando la evacuación de los rehenes culminó, “el Ejército entró y acabó con los que estaban adentro”.

Cuando finalmente le fue permitido el ingreso al delegado de la Cruz Roja, con un mensaje de diálogo y cese al fuego, la retoma del Palacio por parte del Ejército ya había llegado a su fin.

Los rehenes sobrevivientes que lograron salir del Palacio los días 6 y 7 de noviembre fueron trasladados a la Casa del Florero y, posteriormente, en la mayoría de los casos después de ser registrados, interrogados e identificados plenamente por autoridades militares de inteligencia, se les permitió ir a sus residencias o fueron trasladados a centros hospitalarios.

Otros rehenes, denominados “especiales” por la fuerza pública, fueron trasladados al segundo piso de las instalaciones de la Casa del Florero, y posteriormente varios de ellos fueron remitidos a instalaciones militares. Algunas personas, siete de ellas plenamente identificadas como rehenes y una guerrillera, que salieron con vida del Palacio y fueron trasladadas a la Casa del Florero, posteriormente desaparecieron. Con excepción de Ana Rosa Castiblanco, cuyos restos fueron identificados años después, se desconoce aún la suerte de las demás víctimas.

Créditos: RTVC - Señal Memoria